Family Home Redesign
A Space for Living, Learning & Growing

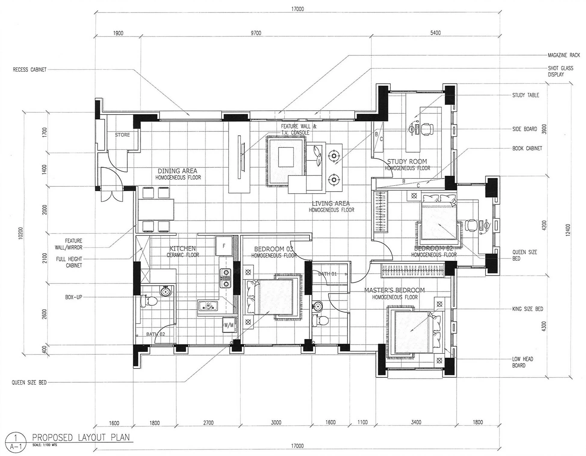
A full-home redesign for a family of four, crafted to be warm, functional, and kid-friendly. The goal was to create a home that grows with the children while supporting both daily living and learning. By transforming the balcony into a bright study nook, the kids gained a comfortable sanctuary to focus, create, and explore. The result is a cohesive, uplifting space perfectly aligned with the family’s lifestyle.

Previous
Previous

Milestones

Next
Next

Design Portfolio II